东莞市大朗长盈精密技术有限公司压铸厂(东莞长盈精密技术有限公司大朗杨涌分公司)是深圳市长盈精密技术股份有限公司(股票代码300115)的下属全资子公司。公司经营范围包括精密电子组件的研发、制造、销售;金属表面处理技术的研发、陶瓷结构件的技术开发、货物及技术进出口等。

客户压铸厂车间共有34台铝合金熔炼炉,设备在生产过程中熔炉产生大量的烟尘及高温,严重造成车间内环境污染,影响工人的身心健康,造成大气污染等问题。根据国家有关法律法规和当地环境排放标准,为了保护大气环境,改善环境质量,废气必须得到有效的治理。为此,长盈精密考虑到生产员工身心健康和社会环保责任及改善周边生态环境,委托深圳市雷火竞技环境科技有限公司根据现场情况,对铝合金熔炼炉工序产生的废气问题进行诊断,并确定行之有效的解决方案。
该项目中,熔铝炉与保温炉的燃料通常为柴油、天然气、电、或煤气,燃烧废气主要含有CO、N、H0、A10,粉尘、炭粉、氯化盐(NaC1、KC1)及少2量酸性气体(HC1、C1、ccl)。熔铝炉粉尘的粒径分布:≤1μm的占72.5%;1~30μm的占14.9%;≥30μm的占12.6%,熔铝炉的烟尘特点是粉尘细而轻,当燃料为柴油或天然气时湿度较大,有一定的腐蚀性。
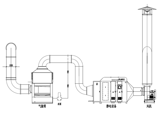
根据我司技术人员现场勘查并参照同行业的治理经验,针对长盈车间压铸熔炉废气的特点,采用组合工艺“压铸车间采用气旋喷淋塔+静电除尘工艺”对排放
废气进行治理,其技术路线和工艺流程图如下:

方案预处理:气旋塔;核心处理:智能静电;处理后排放:高空排放。
通过以上行之有效的废气治理工艺,完美保障了客户生产车间压铸废气达标排放不扰民。